top of page
Guide
Semester
Subject
Student Name
Cherie Dsouza
Architectural Building Construction and Materials
II
Ar. Tushar Shetty
Studio Conductors
Ar. Tushar Shetty
:
:
:
:
:
:
:
:
:
:
:
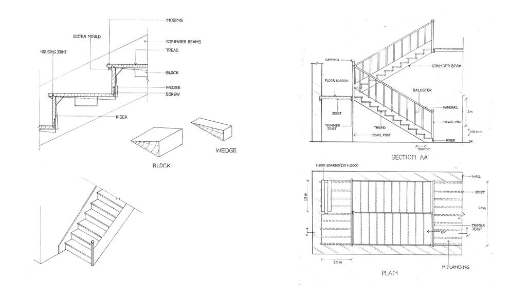
Introduction to building elements and common materials with which building elements can be constructed was the aim of the subject. These were drafted so as to understand their technical aspects. The first half of the drawings involved studying brick bonds used in buildings, brick foundations, various types of arches and lintels in brick. The second half involved initially being introduced to framing, widening and lengthening joineries that are used to join two wooden members and then studying elements like floor, roof, staircase, doors and windows in timber wood.

Brick, Stone and Timber constructional drawings 2
bottom of page













